800-221-1522
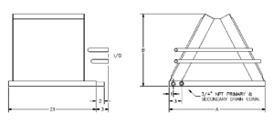
Sussman is pleased to announce the expansion of its EWx Series Electric Hot Water Boiler line, with 3 new intermediate…